Alt Liefering - Lieferinger Hauptstraße 53

Ihr neues Zuhause liegt "im Dorf in der Stadt".

Die direkte Umgebung besteht aus Einfamilienwohnhäusern und zeichnet sich durch einen sehr hohen Grünanteil aus.

In nur wenigen Minuten erreichen Sie Apotheke, Kindergarten, Schule und Einkaufsmöglichkeiten sowie viele

Gastronomieangebote.

 

Fußläufig erreichen Sie bequem:

  • 100 m zur Bushaltestelle                         
  • 200 m zur Bäckerei
  • 650 m zum Herz Jesu Gymnasium        
  • 650 m zur Haltestelle Taxham 
  • 800 m zum Europark             
  • 850 m zur Christian Doppler Klinik

 

Ab Juli 2025 errichten wir ein modernes Wohnhaus mit  nur4 Wohnungen. Die Übergabe erfolgt Juni 2026.

 

Sie dürfen sich freuen auf:

  • sehr schön gelegenes Grundstück mit großem Abstand zu Nachbargebäuden
  • exklusive Planung für optimale Wohnqualität
  • individuelle und persönliche Beratung von Baubeginn bis zur Übergabe 
  • sonnige und großzügige Terrassen bzw. Balkone 
  • Massivbau in Baumeisterqualität
  • Fenster mit elektrischen Raffstores 
  • Erdwärmeheizung & PV-Anlage für niedrige Betriebskosten
  • Lift vom KG bis direkt ins DG
  • alle Bäder mit Fenster

 

PROVISIONSFREI DIREKT VOM BAUTRÄGER

WOHNBAUFÖRDERUNG MÖGLICH

 

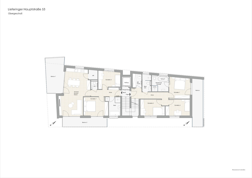
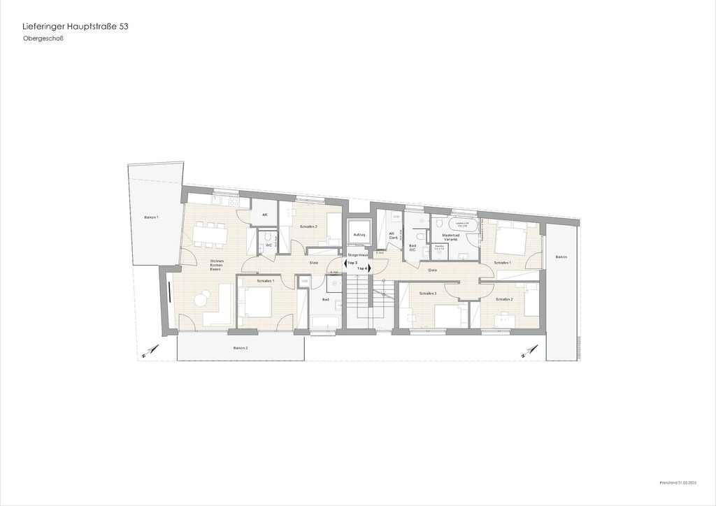
Top 4
Top 4 - 4 Zimmerwohnung.pdf
PDF-Dokument [1.2 MB]
Preisliste
Preisliste - 5020 LH53 - 05.09.25.pdf
PDF-Dokument [76.4 KB]
Bau- und Ausstattungsbeschreibung
Bau- und Ausstattungsbeschreibung 5020 L[...]
PDF-Dokument [148.5 KB]
KFZ- Stellflächen
Kellergeschoß - A3.pdf
PDF-Dokument [58.4 KB]

Top 4

4 Zimmer

1. Obergeschoß & DG 

101,61 m²

Kaufpreis   EUR 1,085.000

  • XXL Wohnbereich mit Raumhöhe bis 4,75 m
  • Dachterrasse Deluxe 
  • 1 Schlafzimmer mit  Masterbad & Balkon 
  • 2 Schlafzimmer 
  • separtes Bad mit Fenster
  • separates WC
  • Abstellraum
  • direkter Liftausstieg
  • Klimaanlage inkl.
  • Abstellraum im Keller

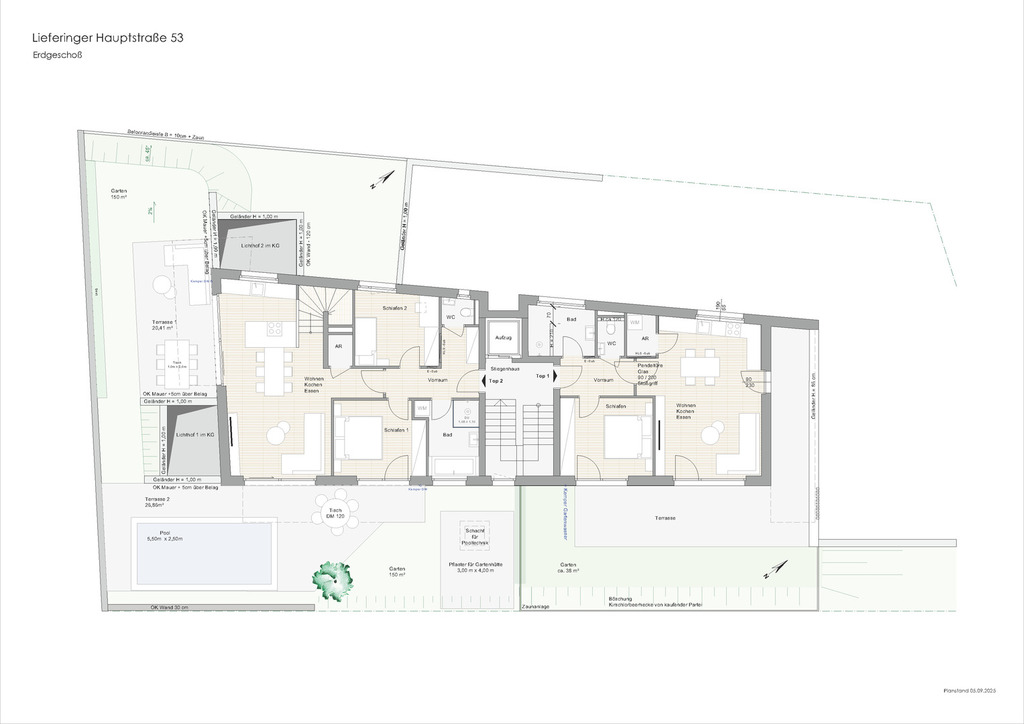
Top 1

2 Zimmer

Erdgeschoß         

54,83 m²

verkauft

  • großer, lichtdurchfluteter Wohnbereich
  • Schlafzimmer mit Terrassenanschluss
  • Bad mit Fenster
  • separates WC 
  • Abstellraum 
  • Eigengarten 

  • Balkon/Terrasse ²

  • Abstellraum im Keller

Top 2

5 Zimmer

Erdgeschoß & Souterrain

110,54 m²

verkauft

  • Ideal für große Familien oder Homeoffice
  • großzügiger Wohnbereich 
  • 4 Schlafzimmer
  • 2 Bäder + separates WC
  • Abstellraum im EG
  • 2 Lichthöfe
  • großer Eigengarten  
  • zwei Terrassen
  • Abstellraum im Keller

Top 3

3 Zimmer

1. Obergeschoß

70,62 m²

verkauft

  • exklusiver Wohnbereich mit großen Balkonen
  • 2 Schlafzimmer
  • Luxusbad mit Fenster
  • separtes WC
  • Abstellraum
  • Balkon südwest 
  • Balkon südost 
  • Abstellraum im Keller

Lage

Ansprechpartner

DI (FH) Alexander Wernisch

0699 120 55 601

office@fuchs-wernisch.com

Druckversion | Sitemap
© Fuchs & Wernisch Objektentwicklung GmbH

Anrufen

E-Mail

Anfahrt